e77.cow乐彩e77.cow乐彩
联系我们
- 佘雪梅 13641502138
- 常州市武进区牛塘镇湖滨南路93号
潜水搅拌机
产品概述 Product Overview
常州鹏展减速机械厂(原常州江泰减速机械厂)是生产各种传动减速机装置的专业工厂,本厂生产的摆线针轮减速机是采用行星式传动原理及摆线针齿齿合的新颖传动机械.广泛应用于冶金、矿山、起重、运输、石油、化工、纺织、制药、食品、轻工等工业部门的减速装置。
1.潜水搅拌机的概述
QJB潜水搅拌机是我公司开发的一种新颖潜水型搅拌机,可分为高速混合搅拌机和低速推流搅拌机两大系列。其具有结构紧凑、操作维修简单、安装检修方便、使用寿命长等特点。选用的电机防护等级为IP68、绕组绝缘等级F级并具有防凝露装置,优良的轴承,两道机械密封,使该机型工作可靠。
该机型叶轮有较佳的水力设计结构,工作效率高,后掠式叶片具有自洁功能,可防止杂物缠绕、堵塞。混合搅拌机适用于污水处理厂和工业流程中搅拌含有悬浮物的液体;低速推流搅拌机适用于工业和城市污水处理厂的曝气池,产生的低切向流的强力水流,可应用于循环、硝化、脱氮和除磷阶段创建水流等。
该机型能正常连续运转的适用范围有:1.介质温度不超过40℃;2.介质的PH值在5?9之间;3.液体密度不超过1150Kg/m3;4.长期潜水运行,潜水深度一般不超过20m。
2.型号表示
QJB 1.5/8—400/3—740—S
搅拌器材质代号 S:不锈钢 C:铸铁 P:聚氨酯
搅拌机每分钟转速
搅拌器直径/数量
电机功率/极数
潜水搅拌机简称
3.产品图样

铸铁混合潜水搅拌机 不锈钢混合潜水搅拌机 低速推流搅拌机
4.QJB潜水搅拌机的结构、选型及主要参数

混合潜水搅拌机 低速推流搅拌机

5.QJB潜水搅拌机的主机及安装系统尺寸





铸铁混合潜水搅拌机 不锈钢混合潜水搅拌机 低速推流搅拌机
4.QJB潜水搅拌机的结构、选型及主要参数

混合潜水搅拌机 低速推流搅拌机

5.QJB潜水搅拌机的主机及安装系统尺寸




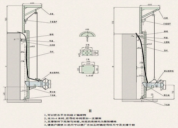
说明:
以上为安装潜水搅拌机的几种常用的安装方式,这些安装方式可在无需排除池中污水的情况下快速装卸,并安全可靠;我们还可以提供其他安装办法和指导。
潜水搅拌机的潜水深度可以根据用户需求进行垂直上下调节。吊架座、支撑和下托架与池的连接均为膨胀螺栓固定,无需预留孔。客户订货时,请提供池深H,以便我公司生产时确定导轨尺寸及支撑架的数量。
注意事项:1.安装时导轨应与水平面垂直,可采用铅垂校正;2.起吊时潜水搅拌机叶轮端较水平面应上仰5o;3起吊中心和潜水搅拌机的起吊中心处于同一垂直线上。
6.QJB潜水搅拌机的流场图
以下流速场是在清水中,边界水流速度为V=0.1m/s工况下:









